
Architectural renderings of 608 E Lake Dr. Final finishes subject to buyer selection.
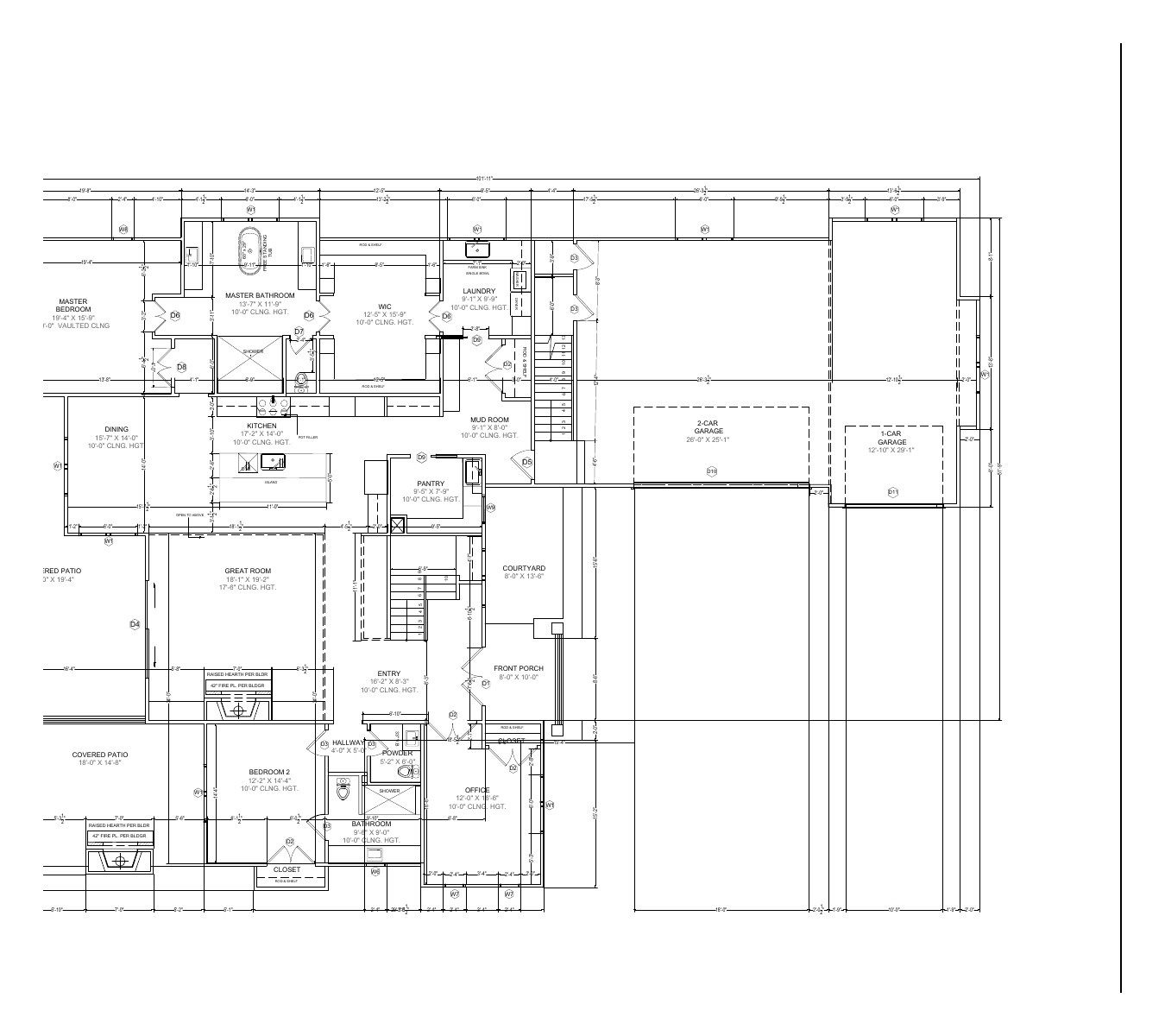
608 E Lake Dr is a deliberate, architect-led custom home on Lake Lanier — 3,962 heated sqft across two levels, a 3-car garage, and nearly 800 sqft of covered rear-porch living.
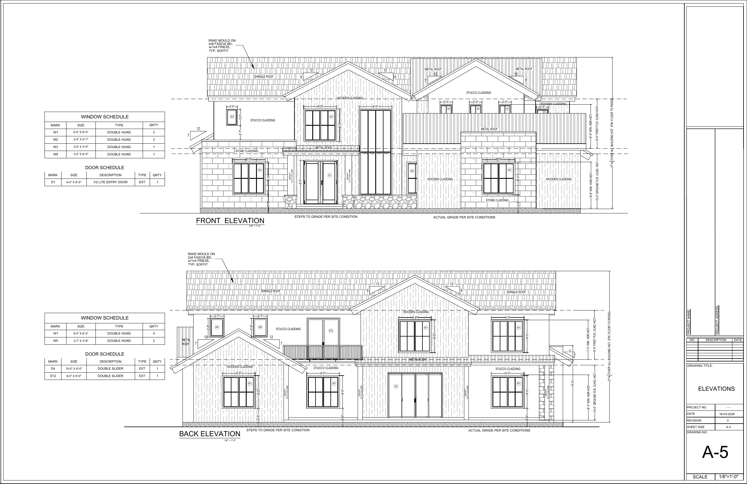
The main level is built around a 17'-6" vaulted great room with 10' ceilings throughout, a chef's kitchen anchored by a pro range, a dedicated home office, and a full guest suite on the first floor — with the primary suite tucked privately across the plan. Upstairs adds a second guest suite, two more bedrooms, a loft, secondary laundry, and a 14' × 14' deck.
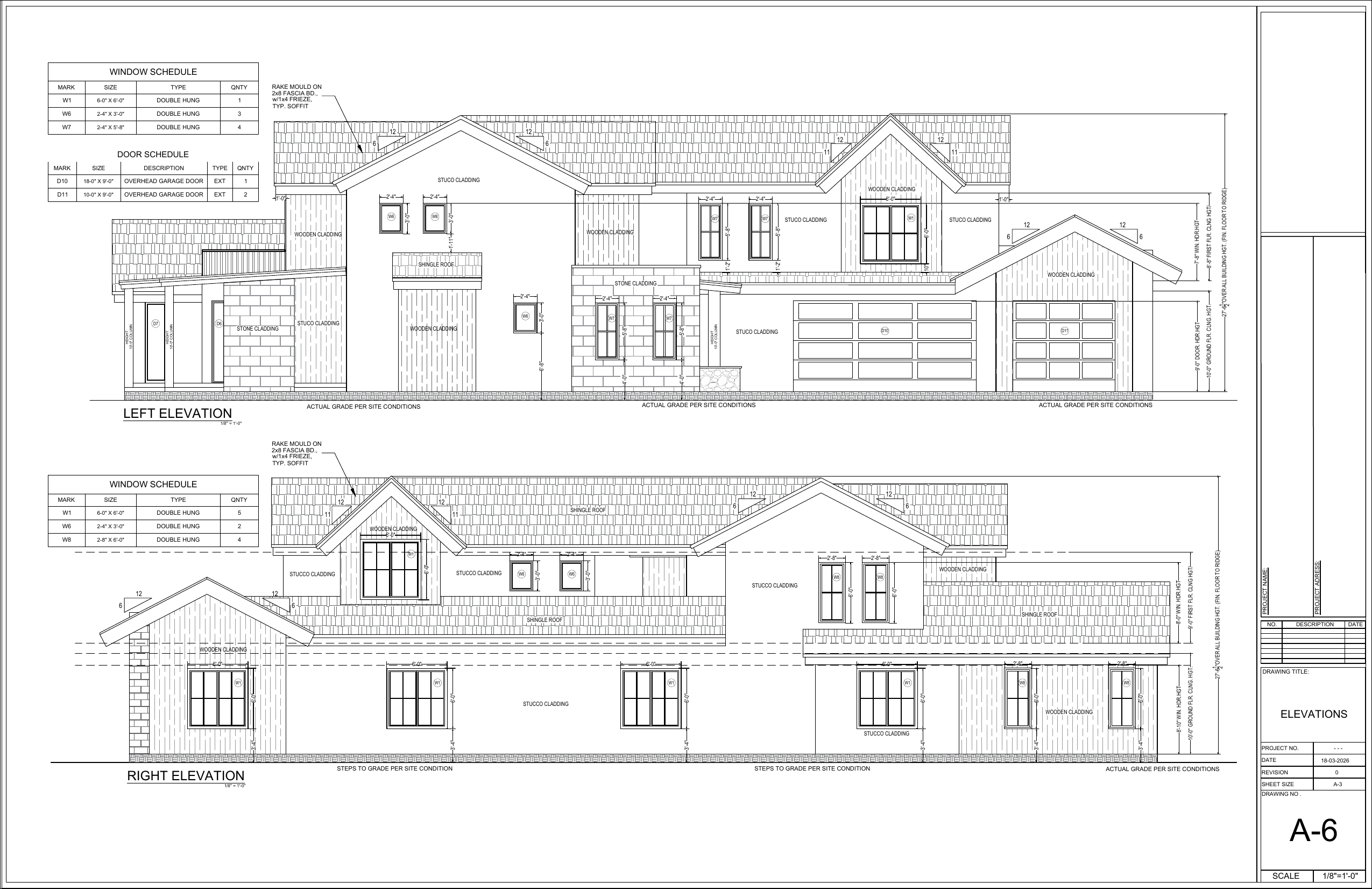
The exterior pairs stucco, stone, and wood cladding with a mixed shingle-and-metal roof — a craftsman-modern hybrid that reads unmistakably custom from the street.
Buy pre-construction, and you select finishes, fixtures, appliances, and smart-home integration before they go in. The home is built by Faltz Building Group, the same principal-led team behind our Milton, Cumming, and Canton work.
2,454 sqft ground floor + 1,508 sqft upper level = 3,962 heated square feet. Plus a 798 sqft unfinished guest-bonus space ready for future build-out.
Open to above. 10' ceilings throughout the main level. Dramatic verticality that anchors the entire floor plan.
17' × 14' kitchen with island, pro-range pot filler, farm sink, and dedicated walk-in pantry. Dining and great room flow open-concept.
19' × 15' master bedroom with 10' vaulted ceiling. Master bath with freestanding 60" tub, separate shower, and a 12' × 15' walk-in closet.
Plus upstairs guest suite. Dedicated home office (12' × 16'-6"). Two additional bedrooms with jack-and-jill bath on upper level. Designed for multigenerational use.
Stucco, stone, and wood cladding in a deliberate craftsman-modern composition. Mixed shingle and standing-seam metal roofing with 6:12, 7:12, and 11:12 pitches.
2-car (26' × 25') + 1-car (12'-10" × 29'-1") configuration. Room for daily drivers, project car, and full-size truck.
Two covered patios (16' × 19'-4" and 18' × 14'-8"), an 8' × 13'-6" interior courtyard, upper-level 14' × 14' deck. 689 sqft of rear-porch living.
Smart-home prewiring throughout. AFCI/GFCI-protected electrical per 2015 IRC. ICF foundation, structural steel as designed, sealed envelope. 2-year limited warranty.
Preliminary architectural plans dated 18 March 2026. Minor revisions may occur during engineering and permitting.



Complete — architectural drawings finalized March 2026.
Current phase. Site prep and foundation underway.
Structural framing, roofing, sealed envelope. Buyer walkthroughs during framing.
Selections installed. Final commissioning. Keys delivered.
The home at 608 E Lake Dr is being built by the same Faltz principal-led team behind our recent work in Milton, Cumming, and Canton. See our portfolio for finished examples — same materials, same craftsmanship, same accountability.
View PortfolioPre-construction buyers get first access to the site, the plans, and the selections. Direct conversation — no listing agent.
We'll walk the lot, review the plans in person, and talk through timeline, budget, and any customization you'd like considered before the slab pours.